
ESTUDOS DE VIABILIDADE
PROJETOS URBANÍSTICOS PARA CONDOMÍNIOS HORIZONTAIS
PROJETOS URBANÍSTICOS PÚBLICOS
SOLUÇÕES URBANAS SUSTENTÁVEIS
DESENVOLVIMENTO DE MASTERPLANS
CONSULTORIA PARA REVISÃO DE LEIS
SERVIÇOS
Planejamento
PARQUE AMBIENTAL LAGOA DO WEEGE
Pomerode SC
Equipe: colab NEUR FURB


















PARQUE CENTRAL e PARQUE LINEAR DO RIO DO TESTO
Pomerode SC
Equipe: colab NEUR FURB






















Estudo de viabilidade
CONDOMÍNIO ECO PARQUE
Jaraguá do Sul SC















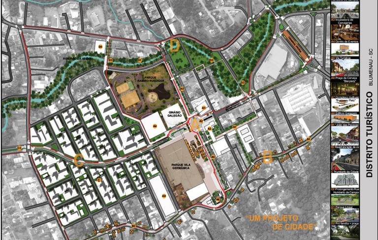
DISTRITO TURÍSTICO
Blumenau SC
Equipe: colab NEUR FURB















CONDOMÍNIO RESIDENCIAL
Boa Vista da Aparecida - PR










ESTUDO URBANÍSTICO - MASTERPLAN
Litoral SC













